現在の検索条件
所在地
大阪府大阪市北区扇町
並び替え:    表示建物数: 
検索結果 物件 1 棟 部屋 1 室
住所
大阪府大阪市北区扇町2丁目6番6号
交通
Osaka Metro谷町線/中崎町駅 徒歩3分
Osaka Metro堺筋線/扇町駅 徒歩7分
階数 14階建て 築年 2013/02 構造 鉄筋コンクリート造
その他 14階建て / 2013/02 / 鉄筋コンクリート造

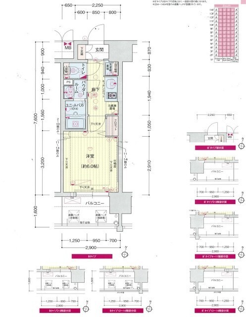
間取り図

所在階

賃料

管理費

間取り

面積

敷/礼

詳細

お気に入り

1

これ以上追加できません
候補一覧は最大30件です
候補一覧ページで削除してください